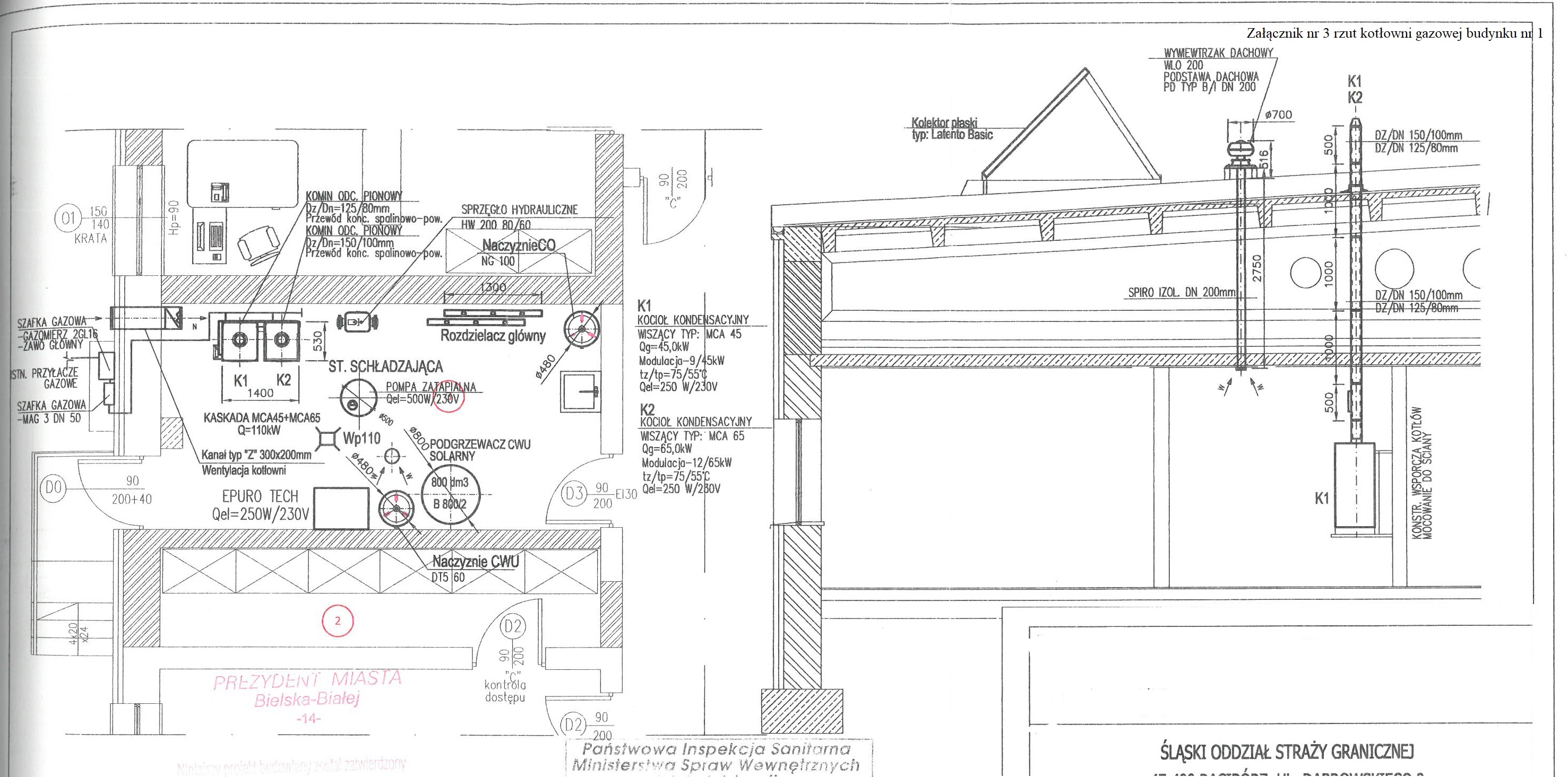
Zapytanie ofertowe na całoroczny serwis, przeglądy kotłów grzewczych gazowych oraz pozostałych instalacji kotłowni pracujących w budynkach PSG w Bielsku – Białej. Załącznik nr 1 do Zapytania ofertowego - OFERTA docx, 16.86 KB, 19.05.2025 Załącznik nr 2 - kotłownia gazowa bud. nr 1 rzut dachu jpg, 529.84 KB, 19.05.2025 Załącznik nr 3 - kotłownia gazowa bud. nr 1 rzut jpg, 960.62 KB, 19.05.2025 Załacznik nr 4 - kotłownia gazowa bud. nr 1 technologia png, 2.13 MB, 19.05.2025 Załacznik nr 5 - kotłownia gazowa bud.nr 3 png, 609.8 KB, 19.05.2025 Unieważnienie — gaz pdf, 122.29 KB, 02.06.2025